Les brûleurs monoblocs dissociés du modèle 1.F et du modèle MBR peuvent être installés à posteriorisation. Les modèles spécifiques sont les suivants :
FOL2800、FOL2500、FOL1600、FOL1500、FOL1000、FOL750、
FL2800、FL2500、FL1600、FL1500、FL1000、FL750、
MBROL2800、MBROL2500、MBROL1600、MBROL1500、MBROL1000、MBROL750、
MBRL2800、MBRL2500、MBRL1600、MBRL1500、MBRL1000、MBRL750、
2. Configuration
Nonn. | Objet | Quantité. | Nonte |
1 | Canon à gaz naturel | À suivre | Le nombre d’armes dépend des différents modèles |
2 | Déflecteur de gaz naturel | 1 | |
3 | Anneau au gaz naturel | 1 | Il faut vérifier si elle a été préconfigurée |
4 | Soupape de contrôle de débit de gaz naturel | 1 | |
5 | Groupe de vannes au gaz naturel | 1 | |
6 | Pipelines de gaz naturel | 1 | Il faut être préparé par le client sur le chantier |
7 | Réinstallation du système de contrôle | 1 | Contrôleur de détection de fuite Siemens, bouton de relais, etc. |
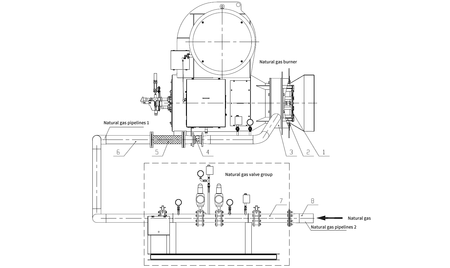
3. Schéma

Non | Nom |
1 | Canon à gaz naturel |
2 | Déflecteur de gaz naturel |
3 | Anneau au gaz naturel |
4 | Soupape de contrôle de débit de gaz naturel |
5 | Tuyau ondulé en métal |
6 | Pipelines de gaz naturel 1 |
7 | Tuyau ondulé en métal (natural gas valve group) |
8 | Pipelines de gaz naturel 2 |
4. Paramètres du brûleur au gaz naturel
Modèle | Puissance (Kw/max) | Consommation maximale de gaz (Nm³/h) | Valeur calorique (KJ/ Nm³) | Pression (mbar) | Diamètre d’entrée | Nonte |
F/MBR-G-2800 | 30000 | 3120 | 34750 | 600 | DN125 | DN150 Le diamètre de la canalisation de transport ne doit pas être inférieur à DN150 |
F/MBR-G-2500 | 26700 | 2780 | 34750 | 600 | DN125 | |
F/MBR-G-1600 | 17900 | 1850 | 34750 | 600 | DN125 | |
F/MBR-G-1500 | 13400 | 1390 | 34750 | 600 | DN125 | DN125 Le diamètre de la canalisation de transport ne doit pas être inférieur à DN125 |
F/MBR-G-1000 | 11200 | 1150 | 34750 | 600 | DN125 | |
F/MBR-G-750 | 8900 | 925 | 34750 | 600 | DN125 |
5. Projet Case
1) Modernisation de brûleurs au Kazakhstan #1009
Adapter le brûleur dissocié de mazout lourd + mazout diesel en brûleur dissocié à double fonction (mazout lourd/diesel) gaz (gaz naturel), permettant l’utilisation du gaz naturel pour la combustion
Il y a un approvisionnement en gaz sur le chantier du client. Le prix de l’essence est plus raisonnable que celui du diesel et il est plus respectueux de l’environnement.
2) Modernisation des brûleurs russes
Les groupes de brûleurs et de vannes au gaz naturel de la #1226 ont été adoptés pour la modernisation des brûleurs au gaz naturel de la #815














